Yukarı Kaydır
Ürün Detayı

Yangın ve Duman Damperi (Kalsiyum Silikatlı) HFD

Yangın ve Duman Damperi (Kalsiyum Silikatlı) HFD

Yangın ve Duman Damperi (Kalsiyum Silikatlı) HFD

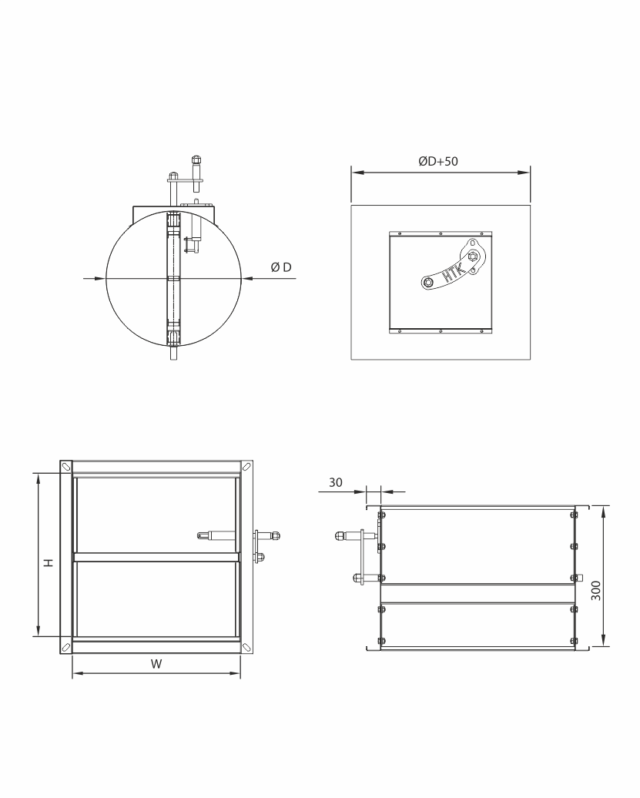
Prizmatik Yangın/Duman Damperinin kasa galvaniz sacdan kaynaksız olarak üretilmektedir Bu sayede korozyon dayanımı yuksektir Kanat malzemesi olarak Ca2SiO4 (Kalsiyum Silikat) kullanılmıştır Silikon esaslı yangına dayanıklı contalı tamponlar monte edilmiştir

Açıklama

Tanım;

* HFD-A: Dortgen Kesitli Yangin Damperi
* HFD-B: Dortgen Kesitli Duman Damperi

Prizmatik Yangın/Duman Damperinin kasa galvaniz sacdan kaynaksız olarak üretilmektedir Bu sayede korozyon dayanımı yuksektir Kanat malzemesi olarak Ca2SiO4 (Kalsiyum Silikat) kullanılmıştır Silikon esaslı yangına dayanıklı contalı tamponlar monte edilmiştir Bunun haricinde yuksek sıcaklıklarda sızdırmazlığın bozulmadan surdürulebilmesi için kasa içerisinde gizli intumescent conta (ısıyla kabaran conta) bulunmaktadır Kanat milleri otomat malzemeden üretilir, çinko kaptanın Korozyona dayanımı yüksektir Burç kısımları pirinç malzemeden imal edilir Bu iki malzeme uyumlu olduğu için yıllarca yağlama gerektirmez ve ilk gunkü çalışma performansını sürdürür. Kanat motor bağlantı kolları galvanızden imal edilmektedir Bağlantı kolları b  e birleşimi 304 kalite paslanmaz çelik miller ile yapılır Yangın esnasında alev ve dumanın komşu mahallede gelişini engeller ENAC (Ispanyol Akredıtasyon Kurumu) akreditasyonuna sahip “Applus + Laboratories” tarafından EN 1366-2 2015 standardına göre 132 dakikalık Yangına Dayanır Testine tabi tutulmuştur EN 13501-3 2005 MAI 2009 standardına göre El 120 (ve, ho i<- > o) S yangına dayanır sınıfı koşulları sağlanmıstır 200 x 200 mm ile 1300 x 800 mm ölçüleri arasında üretilebilmektedir. Kanat çalışma esnasında standart olarak açık pozisyondadır, kanadın kapanma mekanizması 24V AC/DC -230V AC bekleme voltajlı yay geri dönüşu servo motoru ile çalışmaktadır Prizmatik Yangın/Duman Damperi havalandırma sistemin bir bölümunde yangın çıkması durumunda diğer bölümlerini alevden, dumandan ve ısıdan (EIS) izole etmek amacıyla kullanılmaktadır Hava akış yönünde veya zıt yönünde monte edilebilmektedir

Kullanım Alanları;

– Alışveriş Merkezleri,
– Ofis ve Çalışma Alanları
– Garaj ve Otopark Alanları
– Hastane ve Hijyenik Alanlar
– Fabrika ve Endüstriyel Tesisler

MALZEME
*Kasa: 1,2mm Galvaniz sac Kanat: Ca2SiO4 (Kalsiyum Silikat)
*Kasa içi conta: Intumescent conta (Isıyla Kabaran)
*Kanat contası: Yanmaz conta
*Kanat burcu: Pirinç çubuk — 030mm Kanat yatağı: Paslanmaz sac
*Kanat kolu: Galvaniz Kanat mili: Çelik otomat

MONTAJ
* Hava kanalına montaj (klips ve cıvata, somun)
* Duvar geçiş parçası ile duvara montaj

AKSESUARLAR
* DG : Duvar geçiş parçası
* SM : Servo Motor (24V – 230V)
* LS : Limit siviç

×
7/24 Destek

Endüstriyel Havalandırma Çözümleri

Uzman ekibimizle iletişime geçin, size en uygun çözümü sunalım.

WhatsApp ile İletişime Geçin