Yukarı Kaydır
Ürün Detayı

Yangın Damperi HYD

Yangın Damperi HYD

Yangın Damperi HYD

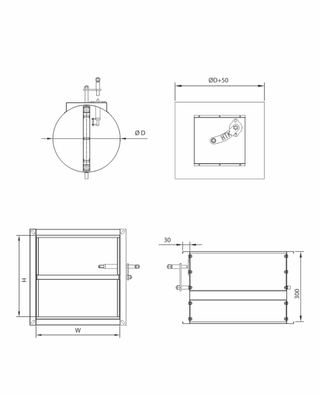
 HYD-R ve HYD-C Serisi Prizmatik ve Dairesel yangın damperleri havalandırma kanallarında, yangının diğer mahallere geçişini engellemek amacıyla kullanılır.

Açıklama

Tanım;

* HYD-R : Dörtgen Kesitli Yangın Damperi
* HYD-C : Dairesel Kesitli Yangın Damperi

– HYD-R ve HYD-C Serisi Prizmatik ve Dairesel yangın damperleri havalandırma kanallarında, yangının diğer mahallere geçişini engellemek amacıyla kullanılır.
– Yangın damperleri üç ana parçadan meydana gelmektedir.
– Bu parçalar sırasıyla; TS EN 10346 belgesine sahip galvaniz sacdan imal edilmiş kasa ve kanat, 72 ˚C sıcaklıkta tepki veren koruma sigortasıdır.
– Yangın Damperlerinde klape dönüşünü sağlamak amacıyla kullanılan yataklama burcu prinç, burç içinde dönen mil ise galvaniz kaplı çelikten mamuldür.
– Bu durum sistemin ömrünü uzatmak, malzeme deformasyonunu önlemektedir.
– Kasa birleşim noktalarında sızdırmazlığı arttırmak amacıyla yüksek ısıya dayanıklı kırmızı silikon izolesi yapılmaktadır.
– İsteğe bağlı olarak sigortalı uygulamanın dışında servo motorla müdahale imkanı sağlanmaktadır.
– Kullanılacak servo motor 24V, 230V dur.
– Servo motorlar isteğe bağlı olarak termik elemanlı seçilebilir.
– Servo motorlu yangın damperlerini otomasyon sistemine bağlayarak kontrol edebilme imkanı sağlanmaktadır.

Kullanım Alanları;

– Alışveriş Merkezleri,
– Ofis ve Çalışma Alanları
– Garaj ve Otopark Alanları
– Hastane ve Hijyenik Alanlar
– Fabrika ve Endüstriyel Tesisler

MALZEME
Ürün kasa ve kanadı 1,2 mm galvanizli sacdan mamuldür. Kanat cidarları arasında 70 kg/m³ yoğunlukta, 25 mm kalınlıkta yangına dayanıklı taş yünü kullanılmaktadır.

MONTAJ
* Hava kanalına montaj (klips ve cıvata, somun)
* Duvar geçiş parçası ile duvara montaj

AKSESUARLAR
* DG : Duvar geçiş parçası
* SM : Servo Motor (24V – 230V)
* LS : Limit swiç

×
7/24 Destek

Endüstriyel Havalandırma Çözümleri

Uzman ekibimizle iletişime geçin, size en uygun çözümü sunalım.

WhatsApp ile İletişime Geçin