Yukarı Kaydır
Ürün Detayı

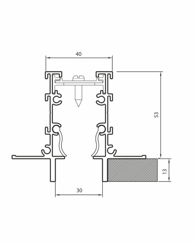
Gizli Tavan Tipi Slot Difüzör HGSD

Gizli Tavan Tipi Slot Difüzör HGSD

Gizli Tavan Tipi Slot Difüzör HGSD

HGSD serisi Slot Difüzörler uygulama yapılacak mahallerde şartlandırılmış havanın dağıtılması veya bu ortamlardan kirli havanın emilmesi için kullanılırlar.

Açıklama

Tanım;

* HGSD-R : Toplayıcı tip gizli slot difüzör, damperli
* HGSD-S : Dağıtıcı tip gizli slot difüzör, damper ve yönlendirici kanatlı

– HGSD serisi Slot Difüzörler uygulama yapılacak mahallerde şartlandırılmış havanın dağıtılması veya bu ortamlardan kirli havanın emilmesi için kullanılırlar.
– Direkt olarak plenum kutusuna köprü elemanı sayesinde monte edilmekte olup, standart 1 slotlu imal edilmektedir.
– İsteğe bağlı olarak slot sayısı arttırılabilir.
– 2,5 – 4 mt tavan yüksekliğine sahip mekanlar da kullanılması uygundur.
– Yaz veya kış konumu slot üzerindeki yönlendirici kanatlar sayesinde ayarlanabilmektedir.
– Slot çerçevesi tavan arasında kaldığından dolayı tavan üzerinde ince bir yarık görüntüsü vermektedir.
– Sürekli montaj uygulamalarda kullanılması tercih edilmelidir.
– 1. Sınıf alüminyum profil kullanılmaktadır.

Kullanım Alanları;

– Alışveriş Merkezleri,
– Ofis ve Çalışma Alanları
– Garaj ve Otopark Alanları
– Hastane ve Hijyenik Alanlar
– Fabrika ve Endüstriyel Tesisler

MALZEME
Ürün çerçeve ve kanatlarının tamamı ekstrüzyon yöntemiyle üretilmiş alüminyum profilden, damper kısmı ise siyah renkte PVC den imal edilmektedir.

YÜZEY KAPLAMA
* Elektrostatik toz boya (Standart renkler RAL9010 ve RAL9016)
* Alüminyum eloksal
* İsteğe bağlı olarak RAL kodundaki diğer tüm renklerde temin edilmektedir.

MONTAJ
* Köprülü montaj

AKSESUARLAR
* PK : Plenum kutusu

×
7/24 Destek

Endüstriyel Havalandırma Çözümleri

Uzman ekibimizle iletişime geçin, size en uygun çözümü sunalım.

WhatsApp ile İletişime Geçin