Yukarı Kaydır
Ürün Detayı

Değişken Debi Ayar Damperi HVAV

Değişken Debi Ayar Damperi HVAV

Değişken Debi Ayar Damperi HVAV

Üfleme ve emiş kanallarında kullanılır. Yüksek hızlı veya değişken debili uygulamalar için dizayn edilmiştir. Üzerinde kullanılan özel motor sayesinde kalibrasyonu yapılmış debi aralığında otomatik olarak çalışıp dışarıdan herhangi müdahale gerektirmez.

Açıklama

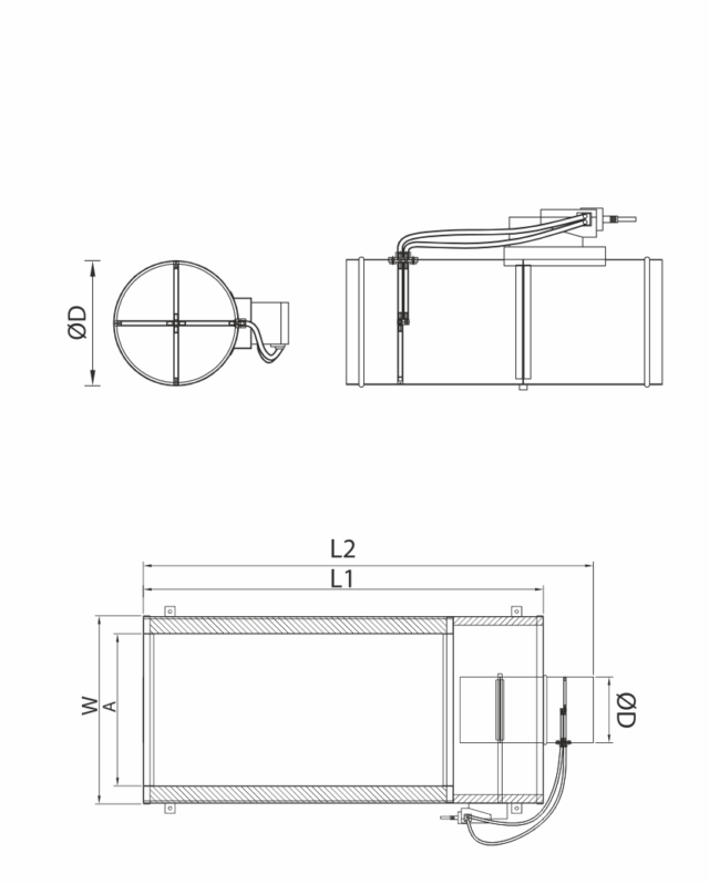
Tanım;

* HVAV-C: Dairesel Kesitli Değişken Debi Ayar Damperi
* HVAV-S: Susturuculu Değişken Debi Ayar Damperi

– Üfleme ve emiş kanallarında kullanılır.
– Yüksek hızlı veya değişken debili uygulamalar için dizayn edilmiştir.
– Üzerinde kullanılan özel motor sayesinde kalibrasyonu yapılmış debi aralığında otomatik olarak çalışıp dışarıdan herhangi müdahale gerektirmez.
– VAV uygulaması yapılmış mekanlarda debi kontrolü yapıldığı için sistemin gereksiz çalışması engellenip enerji tasarrufu sağlanır.
– İsteğe bağlı olarak susturuculu olarak da imal edilebilen VAV cihazları kullanım yerine göre elektrikli ısıtıcılı da imal edilebilir.

Kullanım Alanları;

– Alışveriş Merkezleri,
– Ofis ve Çalışma Alanları
– Garaj ve Otopark Alanları
– Hastane ve Hijyenik Alanlar
– Fabrika ve Endüstriyel Tesisler

MALZEME
HVAV-C serisi VAV cihazlarının kasası ve kanatları galvaniz sacdan, kanat sızdırmazlığı silikon conta kullanılmaktadır.

HVAV-S serisi VAV cihazları galvaniz sacdan yuvarlak girişli boğazlı olarak dörtgen kasalı ve susturucudan oluşmaktadır. Susturucu içi 70 kg/m3 taşyünü levhalardan oluşmaktadır.

MONTAJ
* Askı Montaj
* Yuvarlak Kanala Montaj

×
7/24 Destek

Endüstriyel Havalandırma Çözümleri

Uzman ekibimizle iletişime geçin, size en uygun çözümü sunalım.

WhatsApp ile İletişime Geçin