Açıklama
Çatı Tipi Aksiyel Fanlar
Çatı tipi aksiyel fanlar, basınçlandırma fanı, taze hava fanı ve duman egzoz fanı uygulamalarında kullanılmaktadır.
Genel Özellikler
Uluslar arası Geçerliliği olan EN 12101-3 standartına göre F300-2h(300ºC-2 saat ) ve F400-2h (300ºC-2 saat) çalışma koşullarında çalışma sertifikalarına sahiptir.
Rotor Özellikleri
- Kanat ve göbeği yangın dayanımı yüksek , Alaşımlı , basınçlı döküm alüminyumdan imal edilmiştir.
- 400 mm-1250 mm fan çapı , Ayarlanabilir kanat açısı ve değişken adetli kanatlar ile geniş ürün kapasitesi oluşturmaktadır.
- Kanatlar ISO 1940 Standarlarına göre dinamik olarak balnsı alınmıştır.
Gövde Özellikleri
Fan kasası EN ISO 1461 standarlarına göre sıcak daldırma galvanize sacdan imal edilmiştir.
Motor Özellikleri
2,4 ve 6 kutuplu motorlar seçenekleri mevcuttur
Motorlar IP 55 koruma sınıfında ve Class-H motor izolasyon sınıfına sahiptir.
Genel Havalandırma için kullanılan motorlar standart tek devirli Sürekli Çalışma sınıfıdaki S1 motorlardır.
Duman egzoz Fanları çift devirlidir. sürekli çalışma (S1) ve Acil durum çalışması (S2) modları mevcuttur
Bakım kolaylığı
Fan ve bağlantı terminallerine kolayca ulaşılabilir.
Kullanım Alanları
Merdiven basınçlandırma fanı, taze hava fanı, Duman egzoz fanı olarak kullanılmaktadır.
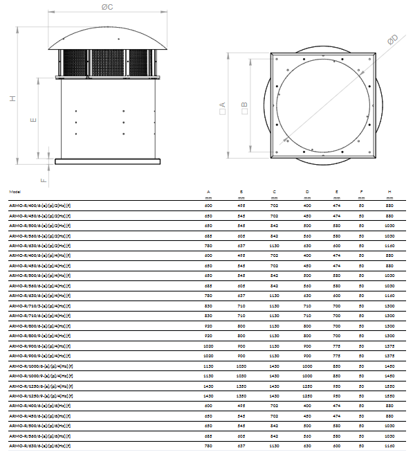
| Model | A | B | C | D | E | F | H |
|---|---|---|---|---|---|---|---|
| mm | mm | mm | mm | mm | mm | mm | |
| ARMO-R/400/6-{a}/{p}/2{Hz} {f} | 600 | 495 | 702 | 400 | 474 | 50 | 880 |
| ARMO-R/450/6-{a}/{p}/2{Hz} {f} | 650 | 545 | 702 | 450 | 474 | 50 | 880 |
| ARMO-R/500/6-{a}/{p}/2{Hz} {f} | 650 | 545 | 842 | 500 | 580 | 50 | 1030 |
| ARMO-R/560/6-{a}/{p}/2{Hz} {f} | 685 | 605 | 842 | 560 | 580 | 50 | 1030 |
| ARMO-R/630/6-{a}/{p}/2{Hz} {f} | 780 | 637 | 1130 | 630 | 600 | 50 | 1160 |
| ARMO-R/400/6-{a}/{p}/4{Hz} {f} | 600 | 495 | 702 | 400 | 474 | 50 | 880 |
| ARMO-R/450/6-{a}/{p}/4{Hz} {f} | 650 | 545 | 702 | 450 | 474 | 50 | 880 |
| ARMO-R/500/6-{a}/{p}/4{Hz} {f} | 650 | 545 | 842 | 500 | 580 | 50 | 1030 |
| ARMO-R/560/6-{a}/{p}/4{Hz} {f} | 685 | 605 | 842 | 560 | 580 | 50 | 1030 |
| ARMO-R/630/6-{a}/{p}/4{Hz} {f} | 780 | 637 | 1130 | 630 | 600 | 50 | 1160 |
| ARMO-R/710/3-{a}/{p}/4{Hz} {f} | 830 | 710 | 1130 | 710 | 700 | 50 | 1300 |
| ARMO-R/710/6-{a}/{p}/4{Hz} {f} | 830 | 710 | 1130 | 710 | 700 | 50 | 1300 |
| ARMO-R/800/6-{a}/{p}/4{Hz} {f} | 920 | 800 | 1130 | 800 | 700 | 50 | 1300 |
| ARMO-R/800/9-{a}/{p}/4{Hz} {f} | 920 | 800 | 1130 | 800 | 700 | 50 | 1300 |
| ARMO-R/900/6-{a}/{p}/4{Hz} {f} | 1020 | 900 | 1130 | 900 | 775 | 50 | 1375 |
| ARMO-R/900/9-{a}/{p}/4{Hz} {f} | 1020 | 900 | 1130 | 900 | 775 | 50 | 1375 |
| ARMO-R/1000/6-{a}/{p}/4{Hz} {f} | 1130 | 1030 | 1430 | 1000 | 850 | 50 | 1450 |
| ARMO-R/1000/9-{a}/{p}/4{Hz} {f} | 1130 | 1030 | 1430 | 1000 | 850 | 50 | 1450 |
| ARMO-R/1250/6-{a}/{p}/4{Hz} {f} | 1430 | 1350 | 1430 | 1250 | 950 | 50 | 1550 |
| ARMO-R/1250/9-{a}/{p}/4{Hz} {f} | 1430 | 1350 | 1430 | 1250 | 950 | 50 | 1550 |
| ARMO-R/400/6-{a}/{p}/6{Hz} {f} | 600 | 495 | 702 | 400 | 474 | 50 | 880 |
| ARMO-R/450/6-{a}/{p}/6{Hz} {f} | 650 | 545 | 702 | 450 | 474 | 50 | 880 |
| ARMO-R/500/6-{a}/{p}/6{Hz} {f} | 650 | 545 | 842 | 500 | 580 | 50 | 1030 |
| ARMO-R/560/6-{a}/{p}/6{Hz} {f} | 685 | 605 | 842 | 560 | 580 | 50 | 1030 |
| ARMO-R/630/6-{a}/{p}/6{Hz} {f} | 780 | 637 | 1130 | 630 | 600 | 50 | 1160 |
Endüstriyel Havalandırma Çözümleri
Uzman ekibimizle iletişime geçin, size en uygun çözümü sunalım.