Yukarı Kaydır
Ürün Detayı

ARMO-JR Radyal Jet Fan- Geriye Eğimli Kanat

ARMO-JR Radyal Jet Fan- Geriye Eğimli Kanat

ARMO-JR Radyal Jet Fan- Geriye Eğimli Kanat

Yüksek performanslı endüstriyel kanal fanı, güçlü hava akışı ve uzun ömürlü çalışma sunar.

 

Açıklama

ARMO-JR

Cihaz çıkışında jet akışının sağlanmasıyla akış hattı etrafındaki zehirli gazları kendi akış alanına katarak zehirli gazlara momentum kazandıran ve bu sayede egzoz noktalarına yönlendiren yüksek sıcaklığa dayanıklı fanlardır. Radyal jet fanlar aksiyel jet fanlarla aynı amaçla kullanılır. Bu fanlar daha düşük yüksekliklere sahip olduğu için yüksekliği 2,4m’den düşük yada kaset giriş bulunan otoparklar için uygundur.

Genel özellikler:

  • EN 12101-3 ve CE sertifikalarına sahiptir.
  • Motor ve fan sistemi susturucu sistemine akupledir.
  • 400 C ve  300 C de 2 saat kesintisiz çalışabilmektedir.
  • Özel deflektör tasarımına sahiptir.
  • Estetik dış görünüme sahiptir.

Rotor özellikleri.

  • Yangına dayanıklı yüksek kaliteli galvanizli çelikten fana sahiptir.
  • Tek yönde atış yapma kapasitesine sahiptir. Hava hareketini dikey yönde alarak; yatay atış yaparak tamamlar.
  • Fanın pervane kısmı ISO 1940’a göre dinamik balanslanmaktadır ve fanın çalışması esnasında herhangi bir eksantriklik söz konusu değildir.
  • Özel olarak tasarlanmış fan göbeğine sahiptir.

Gövde özellikleri

  • Kullanışlı ve montaj kolaylığı sunan kompakt tasarım gövdeye sahiptir.

Motor özellikleri

  • 8, 4 kutuplu çift devirli motora sahiptir.
  • Motorlar, IP 55 sınıfındadır ve Class – H yalıtımındadır.

Fan giriş konisi

  • Aerodinamik özellikleri ve performansı maksimuma çıkararak ses seviyelerini minimuma indirgemek için özel tasarım fan giriş konisine sahiptir.

Giriş konisi

Aerodinamik özellikleri ve performansı maksimuma çıkararak ses seviyelerini minimuma indirgemek için özel tasarım giriş konisine sahiptir.

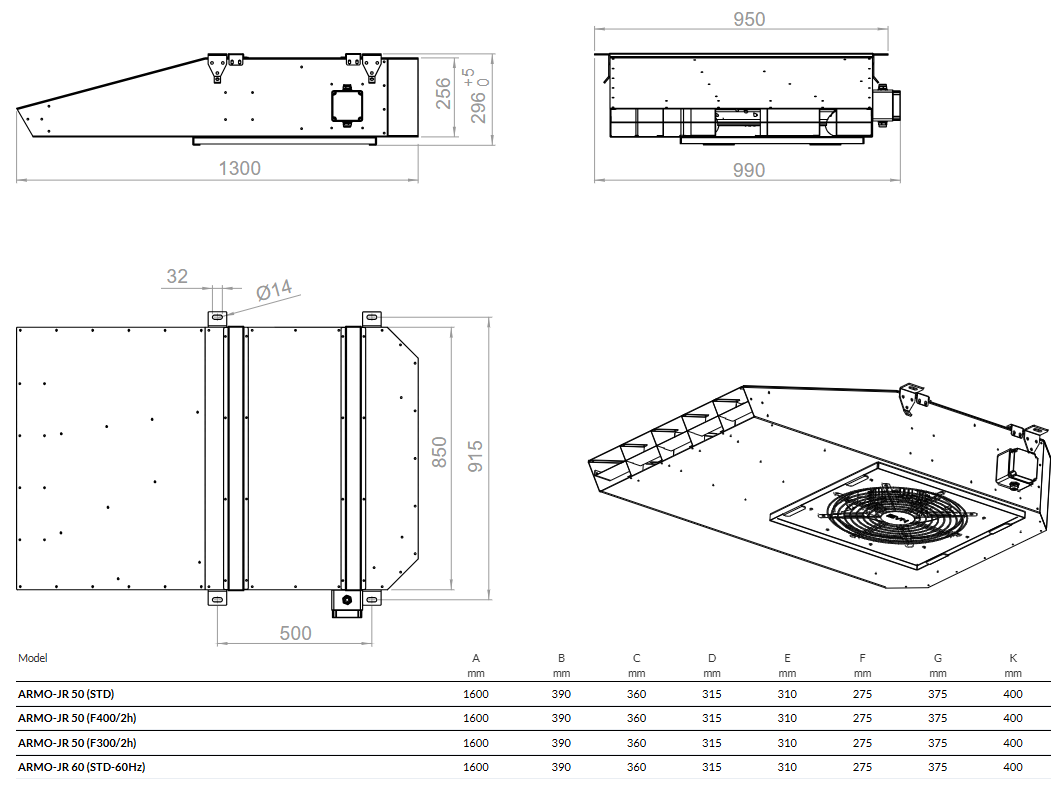
ModelABCDEFGK
 mmmmmmmmmmmmmmmm
ARMO-JR 50 (STD)1600390360315310275375400
ARMO-JR 50 (F400/2h)1600390360315310275375400
ARMO-JR 50 (F300/2h)1600390360315310275375400
ARMO-JR 60 (STD-60Hz)1600390360315310275375400
×
7/24 Destek

Endüstriyel Havalandırma Çözümleri

Uzman ekibimizle iletişime geçin, size en uygun çözümü sunalım.

WhatsApp ile İletişime Geçin